Cho thuê xưởng chính chủ khu công nghiệp Mộc Bài, huyện Bến Cầu, Tây Ninh giá hợp lý tại Tây Ninh, thì lựa chọn xưởng trong khu công nghiệp Mộc Bài là giải pháp tối ưu. Vị trí thuận tiện, kết nối dễ dàng với Thành phố Hồ Chí Minh và cửa khẩu quốc tế Mộc Bài, rất phù hợp cho các ngành sản xuất và logistics.
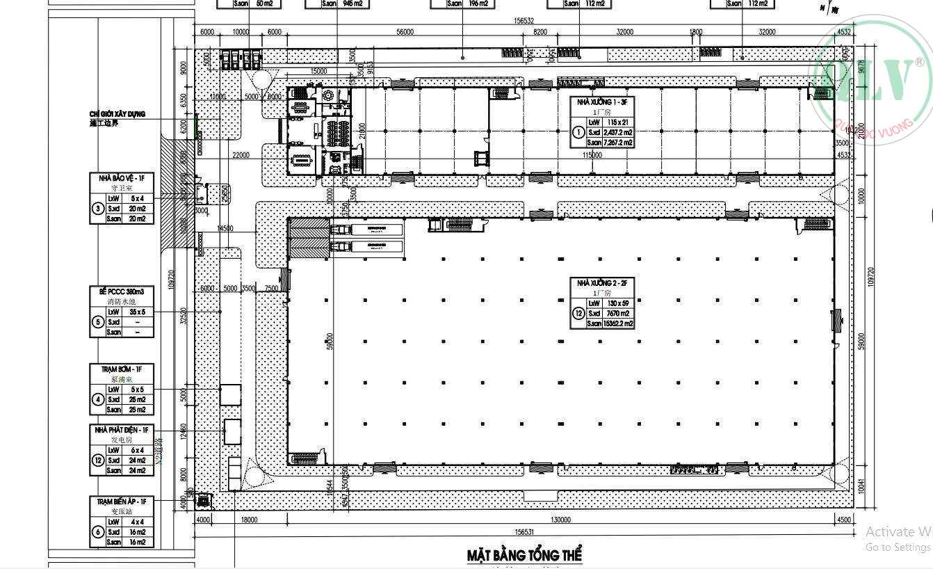
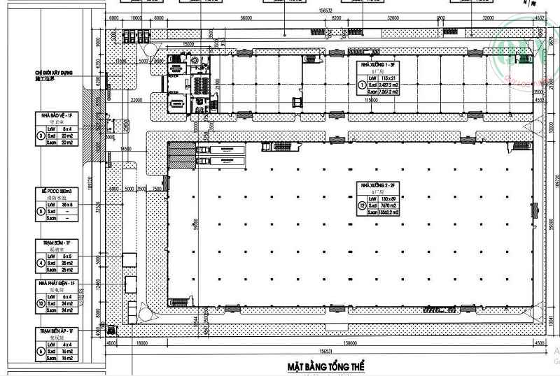
– Tổng diện tích đất: 17.174m2.
– Diện tích xây dựng: 22.989m2, bao gồm:
+ Xưởng 1: 7.627m2, kết cấu 3 tầng, diện tích sàn 2.437m2.
+ Xưởng 2: 15.362m2, kết cấu 2 tầng, diện tích sàn 7.692m2.
+ Khu văn phòng: 945m2, đầy đủ tiện nghi, sẵn sàng sử dụng.
Diện tích rộng, kết cấu chắc chắn và vị trí thuận tiện, đây là lựa chọn lý tưởng cho các doanh nghiệp muốn phát triển lâu dài.
– Nhà xưởng được xây dựng kiên cố, hạ tầng đồng bộ, hệ thống phòng cháy chữa cháy đầy đủ và đạt tiêu chuẩn. Doanh nghiệp có thể vào sản xuất ngay mà không cần sửa chữa. Đây là cơ hội hiếm có cho các doanh nghiệp khi tìm nơi cho thuê xưởng chính chủ khu công nghiệp Mộc Bài, tỉnh Tây Ninh.
Liên hệ
Thông tin liên hệ
Mr. Tài
Mobile: 0931.769.444
Email: cskh.quylocvuong@gmail.com
Diện tích: 11.515 m2
Khu vực: Tây Ninh

Liên hệ
Diện tích: 14.400 m2
Khu vực: Gò Dầu

Liên hệ
Diện tích: 25.200 m2
Khu vực: Gò Dầu

Liên hệ
Diện tích: 3.735 m2
Khu vực: Tây Ninh

Liên hệ
Diện tích: 8.400 m2
Khu vực: Tây Ninh

7,000,000 USD
Diện tích: 6.612 m2
Khu vực: Tây Ninh

3.9 USD/m2
Diện tích: 20.000 m2
Khu vực: Hồ Chí Minh

5 USD/m2
Diện tích: 3.500 m2
Khu vực: Hồ Chí Minh

3.2 USD/m2
Diện tích: 6.200 m2
Khu vực: Hồ Chí Minh

3.8 USD/m2
Diện tích: 5.000 m2
Khu vực: Hồ Chí Minh

3 USD/m2