Cho thuê xưởng KCN Phước Đông Gò Dầu Tây Ninh nằm tại vị trí đẹp trong khu công nghiệp, thuận tiện kết nối với TP. Hồ Chí Minh và các khu công nghiệp lân cận. Xưởng mới, thiết kế hiện đại, hạ tầng hoàn chỉnh, thích hợp cho sản xuất, kho bãi hoặc trung tâm logistics, doanh nghiệp có thể đưa vào hoạt động ngay mà không mất thời gian cải tạo.
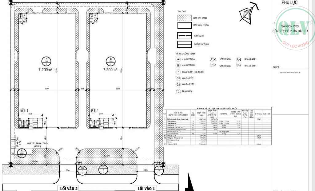
Tổng diện tích khuôn viên 27.083m², diện tích xây dựng 14.459m², bao gồm:
– Nhà xưởng A: 7.200m².
– Nhà xưởng B: 7.200m².
– Các công trình phụ trợ khác được bố trí hợp lý, đáp ứng đầy đủ nhu cầu sản xuất, kho bãi và văn phòng.
Cho thuê xưởng KCN Phước Đông Gò Dầu Tây Ninh được xây dựng mới, hiện đại, kết cấu vững chắc, có thể vào hoạt động ngay. Hạ tầng hoàn thiện, bao gồm:
Điện 3 pha công suất lớn đáp ứng nhu cầu sản xuất công nghiệp.
Hệ thống cấp thoát nước và xử lý nước thải đạt chuẩn khu công nghiệp.
Hệ thống phòng cháy chữa cháy (PCCC) đầy đủ và được kiểm duyệt theo quy định.
Nơi cho thuê xưởng có đường nội bộ rộng rãi, xe container ra vào thuận tiện, xưởng cho thuê phù hợp với mọi loại hình vận chuyển và logistics.
Khu đất có pháp lý đầy đủ, sổ chính chủ, giao dịch an toàn và minh bạch.
Liên hệ
Thông tin liên hệ
Mr. Tài
Mobile: 0931.769.444
Email: cskh.quylocvuong@gmail.com
Diện tích: 32.000 m2
Khu vực: Đồng Nai

Liên hệ
Diện tích: 52.815 m2
Khu vực: Bàu Bàng

Liên hệ