Cho thuê xưởng trong KCN Trảng Bàng Tây Ninh là giải pháp phù hợp cho doanh nghiệp đang tìm kiếm mặt bằng sản xuất quy mô lớn, hạ tầng đồng bộ và vị trí kết nối thuận lợi. Nhà xưởng nằm trong khu công nghiệp Trảng Bàng, tỉnh Tây Ninh, thuận tiện di chuyển về Thành phố Hồ Chí Minh và các khu vực kinh tế trọng điểm phía Nam.
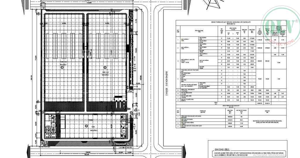
Tổng diện tích khu đất đạt 48.838m2, trong đó diện tích xây dựng là 30.93m2. Khu nhà xưởng được chia thành 3 phân khu riêng biệt, thuận tiện bố trí sản xuất và vận hành linh hoạt:
Xưởng 1: 12.728m2.
Xưởng 2: 12.728m2.
Xưởng 3: 5.474m2.
Nhà xưởng được đầu tư đầy đủ hạ tầng khu công nghiệp đồng bộ.
Hệ thống điện sản xuất ổn định. Hệ thống cấp thoát nước đầy đủ. Giao thông nội khu rộng rãi, xe container lưu thông thuận tiện. Hệ thống phòng cháy chữa cháy theo quy định.
Nhà xưởng rộng rãi, thông thoáng. Không gian xưởng cao, dễ bố trí máy móc và dây chuyền sản xuất, giúp tối ưu hiệu suất sử dụng mặt bằng. Phù hợp cho nhiều ngành nghề sản xuất, gia công và kho vận.
Lợi thế của cho thuê xưởng trong khu công nghiệp Trảng Bàng Tây Ninh là vị trí kết nối nhanh với Thành phố Hồ Chí Minh, các tỉnh Đông Nam Bộ và hệ thống logistics liên vùng. Điều này giúp doanh nghiệp tiết kiệm chi phí vận chuyển và thuận lợi mở rộng hoạt động kinh doanh.
Liên hệ
Thông tin liên hệ
Mr. Tài
Mobile: 0931.769.444
Email: cskh.quylocvuong@gmail.com
Diện tích: 8.361 m2
Khu vực: Bình Dương

Liên hệ
Diện tích: 9.900 m2
Khu vực: Bình Dương

Liên hệ
Diện tích: 11.515 m2
Khu vực: Tây Ninh

Liên hệ
Diện tích: 14.400 m2
Khu vực: Gò Dầu

Liên hệ
Diện tích: 25.200 m2
Khu vực: Gò Dầu

Liên hệ
Diện tích: 3.735 m2
Khu vực: Tây Ninh

Liên hệ
Diện tích: 22.989 m2
Khu vực: Bến Cầu

Liên hệ
Diện tích: 8.400 m2
Khu vực: Tây Ninh

7,000,000 USD