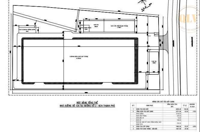
Xưởng cho thuê KCN Thạnh Phú Vĩnh Cửu Đồng Nai với tổng diện tích khuôn viên rộng 8.285 m2 là lựa chọn hàng đầu cho các doanh nghiệp đang tìm kiếm không gian sản xuất quy mô và hiện đại. Với hạ tầng đồng bộ và vị trí chiến lược, bất động sản này đáp ứng đầy đủ các tiêu chuẩn khắt khe về công nghiệp.
Mặt bằng được tối ưu hóa công năng sử dụng với các thông số chi tiết như sau:
Tổng diện tích xây dựng: 4.044m2.
Diện tích xưởng sản xuất: 3.724m2 (không gian rộng, chiều cao đạt chuẩn).
Diện tích văn phòng: 320m2 (thiết kế chuyên nghiệp, sẵn sàng vào làm việc).
Trạm điện: Công suất 560 KVA, đảm bảo nguồn điện ổn định cho máy móc hạng nặng.
Công trình phụ: Đầy đủ nhà bảo vệ, bể nước PCCC, nhà xe và hệ thống sân bãi đường nội bộ.
Vị trí đắc địa: Tọa lạc tại huyện Vĩnh Cửu, Đồng Nai, giúp doanh nghiệp dễ dàng kết nối với các cảng biển và trung tâm logistics lớn tại miền Nam.
Thiết kế thông minh: Sự tách biệt giữa khu vực sản xuất và văn phòng điều hành giúp tối ưu hóa quản lý.
Pháp lý minh bạch: Hồ sơ hoàn công đầy đủ, hỗ trợ mọi thủ tục đăng ký kinh doanh và giấy phép môi trường.
Với diện tích xây dựng 4.044 m2 trên khuôn viên hơn 8.000 m2, xưởng cho thuê KCN Thạnh Phú Vĩnh Cửu Đồng Nai là mặt bằng lý tưởng để thiết lập dây chuyền sản xuất dài hạn.
Liên hệ
Thông tin liên hệ
Mr. Tài
Mobile: 0931.769.444
Email: cskh.quylocvuong@gmail.com
Diện tích: 20.665 m2
Khu vực: Đồng Nai

Liên hệ
Diện tích: 2.900 m2
Khu vực: Biên Hoà

Liên hệ
Diện tích: 93.038 m2
Khu vực: Đồng Nai

Liên hệ
Diện tích: 32.000 m2
Khu vực: Đồng Nai

Liên hệ