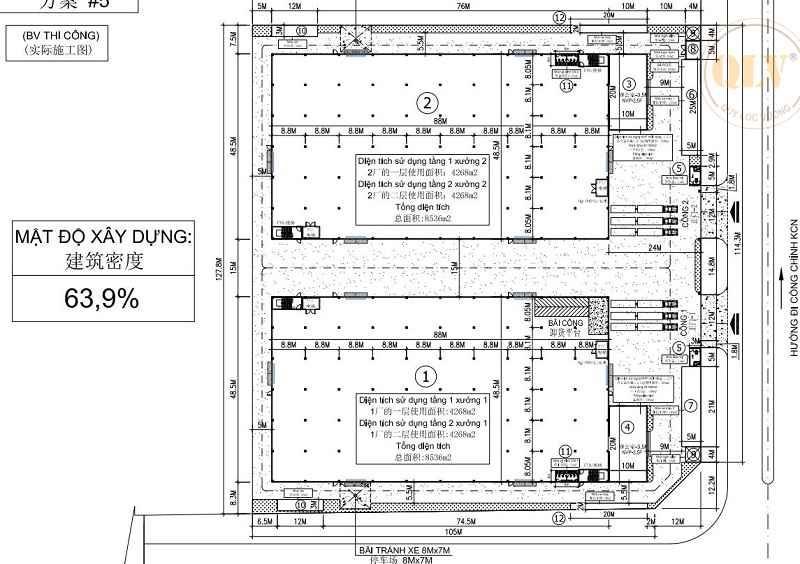
Xưởng cho thuê cụm công nghiệp Tiến Hưng Đồng Xoài Bình Phước đang thiết lập một tiêu chuẩn mới về không gian công nghiệp tối ưu. Với tổng diện tích xây dựng lên đến 18.936m2 trên khuôn viên 14.789m2, đây là tổ hợp gồm 2 nhà xưởng riêng biệt được thiết kế theo mô hình 1 trệt 1 lầu, giúp nhân đôi năng suất trên cùng một đơn vị diện tích.
Mỗi nhà xưởng tại đây được thiết kế hện đại, tối ưu về công năng và chất lượng, đáp ứng các tiêu chuẩn khắt khe nhất của nhà đầu tư:
Diện tích xây dựng mỗi xưởng: 9.236m2.
Thiết kế thông minh: Kết cấu 1 trệt 1 lầu với diện tích sàn mỗi tầng là 4.268m2. Đặc biệt, mỗi xưởng được trang bị 2 thang máy tải trọng lớn, đảm bảo việc luân chuyển hàng hóa giữa các tầng diễn ra xuyên suốt.
Văn phòng điều hành: Khối văn phòng 3.5 tầng rộng 700m2 được thiết kế sang trọng, tách biệt hoàn toàn với khu vực sản xuất, tạo môi trường làm việc chuyên nghiệp cho bộ phận quản lý.
Hệ thống năng lượng: Mỗi xưởng sở hữu trạm biến áp riêng 400KVA, tổng cộng 800 KVA cho cả khu phức hợp.
Việc lựa chọn xưởng mang lại những giá trị cộng thêm vượt trội:
Giao thông ưu tiên: Bãi đậu xe container rộng rãi cùng hệ thống đường nội bộ được tính toán kỹ lưỡng cho việc xuất nhập hàng 24/7.
Vị trí vàng: Nằm trong lòng thành phố Đồng Xoài, trung tâm kinh tế – chính trị của tỉnh Bình Phước, giúp doanh nghiệp dễ dàng tuyển dụng lao động tay nghề cao.
Hệ thống phụ trợ: Đầy đủ nhà bảo vệ, hệ thống PCCC tiêu chuẩn và các công trình phụ trợ, đảm bảo an ninh cho tài sản doanh nghiệp.
Đây là mô hình nhà xưởng lý tưởng cho các ngành công nghệ cao, điện tử, may mặc hoặc các ngành cần không gian sạch và hiện đại.
Liên hệ
Thông tin liên hệ
Mr. Tài
Mobile: 0931.769.444
Email: cskh.quylocvuong@gmail.com
Diện tích: 11.854 m2
Khu vực: Bình Phước

Liên hệ
Diện tích: 27.281 m2
Khu vực: Bình Phước

Liên hệ
Diện tích: 2.000 m2
Khu vực: Bình Phước

Liên hệ
Diện tích: 7.500 m2
Khu vực: Bình Phước

Liên hệ
Diện tích: 14.000 m2
Khu vực: Bình Phước

Liên hệ
Diện tích: 17.409 m2
Khu vực: Bình Phước

Liên hệ
Diện tích: 20.400 m2
Khu vực: Bình Phước

2.8 USD/m2